Фасадная система Alucom LF 301 под Фиброцементные плиты

  • Описание системы
  • Документация к системе
  • Фотографии + чертежи + узлы
  • Комплектующие
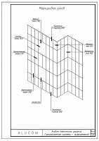
Alucom LF 301 – алюминиевая подоблицовочная конструкция, с креплением только в межэтажные перекрытия.

Система разработана для зданий, на которых невозможно применение классической схемы крепления к несущим стенам, из-за низкой несущей способности стен (пенобетон, газосиликат, щелевой кирпич), а возможно лишь крепление в межэтажные железобетонные перекрытия.

Гарантированный состав сплава всех несущих элементов системы - А 6063 Т6, обеспечиваемый диапазон регулировки относа от стены от 210 мм до 280мм.

В качестве облицовки используются плиты из фиброцемента. Крепление осуществляется заклепочным способом.

Особенности системы:


  • Уникальная запатентованная пространственная конструкция кронштейна и направляющей.
  • Соотношение весовых нагрузок к прочности не имеет равных в данном сегменте.
  • Надежность крепления всей конструкции за счет применения болтового соединения кронштейна и направляющей.
  • Быстрота сборки.
  • Эстетическая привлекательность, характеризующаяся возможностью уменьшить швы между плитами до 6 мм.
336324b28b8f0e7db2d133a435e7ed77
336324b28b8f0e7db2d133a435e7ed77
ac4e1af3573f0b7cc13623b17a563bbe
ac4e1af3573f0b7cc13623b17a563bbe
002d863f258e09dcf5ab3365d604e75d
002d863f258e09dcf5ab3365d604e75d
1c83328801675e5df2995af9f6a2fbcc
1c83328801675e5df2995af9f6a2fbcc
95d288ee0f3979eb0db9cd62dfe79d46
95d288ee0f3979eb0db9cd62dfe79d46
7778bcbb2bdec05afc158f6ebc778afa
7778bcbb2bdec05afc158f6ebc778afa
Для вас предусмотрена скидка от базовых цен!
Отправить заявку

Другие фасадные системы под
Фиброцементные плиты

Заказать расчёт сметы. БЕСПЛАТНО!